Trabajo Final de Máster
Finalista del Certamen d’Arquitectura d’Art Jove 2021

Descripción:
Trabajo Final de Máster
El trabajo se sitúa en la ciudad de Palma (Illes Balears), cuya economía se basa principalmente en el turismo desde los años 60. Una de las problemáticas de la capital es un inmueble abandonado en primera línea de costa de la bahía y en una de las entradas a la ciudad. Este edificio cuenta con un estilo del Movimiento Internacional, muy relacionado con Mies Van der Rohe. Originalmente fue destinado a uso de oficinas para una empresa de electricidad y gas.
Por lo tanto. el proyecto trata sobre la reutilización y renovación de este edificio para la nueva sede la escuela de hotelería y hostelería. Con esta nueva y mejorada ubicación, la escuela puede utilizar la construcción para albergar un mayor restaurante al público y un hotel para que los estudiantes puedan aplicar sus conocimientos en práctica. Un gran edificio para aprender y ver la realidad de su profesión. Además del restaurante y hotel, también contará con una biblioteca, aulas, residencia de estudiantes y laboratorio.
La relación con el entorno es una de las principales factores a resolver. Al ser construido en una zona aislada de la ciudad durante los años 70, cuando esta creció, el edificio quedó recluido sin ninguna solución para su fluida relación edificio-entorno. Por tanto, se propone un diseño que extiende y uniformiza la franja verde, también se hacen cambios en la fachada y la construcción de podios para lograr una conexión gradual exterior-interior.
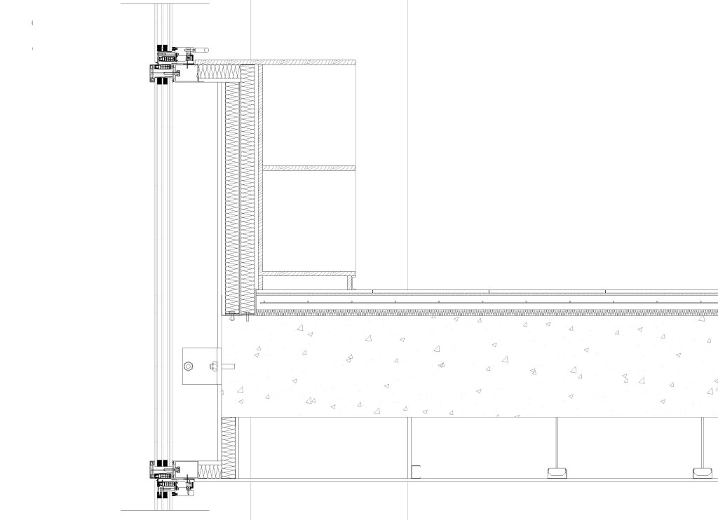
Después de cuarenta años el muro cortina de la fachada no cumple muchas de las actuales normas de seguridad contra incendios, de aislamiento y protección. Por tanto, la construcción se moderniza y se renuevan los vidrios con franjas de vidrio translúcido y transparente con un nuevo sistema de muro cortina que si soporte los esfuerzos, para adaptarlo al nuevo contexto.
Finalista del certamen de Arquitectura y Diseño de Interiores en la modalidad de Proyectos de Futuro del programa cultural Art Jove 2021.
Curso del proyecto: Máster de Arquitectura


Estado actual – Proposta del entorno del proyecto




En la planta baja se quiere diferenciar la entrada de los estudiante ( acceso oeste ) de la entrada para los clientes del hotel y restaurante ( acceso del este ). Para marcar estas entradas se eliminan zonas de la planta baja del muro cortina. Mediante podios se hace más gradual el camino exterior-interior y se construyen rampas para cumplir las normas de accesibilidad. En la zona este se incorpora un aparcamiento para los clientes del hotel con conexión al edificio por la planta -1.
En todo el edificio, aunque con distribución diferente a la actual, se mantiene el bloque central de circulación vertical que sobresale exteriormente por la cubierta. Para conseguir este imagen, se ha revestido todo este bloque con láminas de zinc.

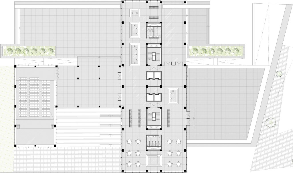
Planta baja

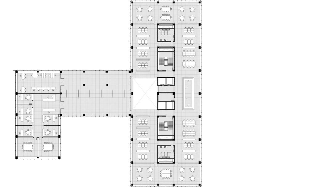
Planta 1 – Biblioteca

Planta 5 – Residencia de estudiantes

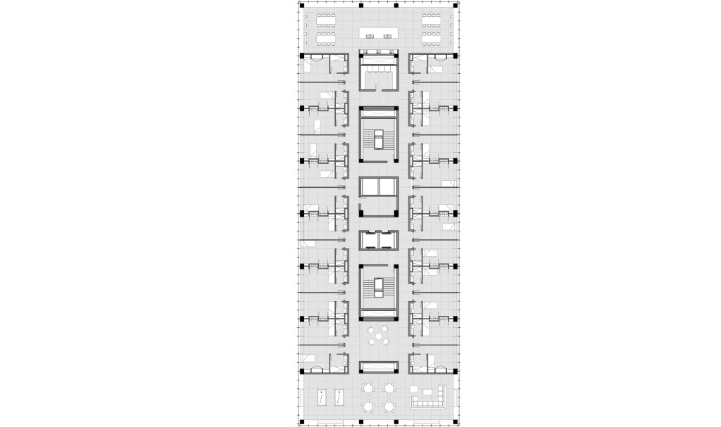
Planta 6 – Hotel


Axonometría de la habitación de estudiantes
Axonometría de la habitación del hotel

Axonometría del restaurante – laboratorio

Sección transversal

Sección longitudinal por el bloque central

Sección longitudinal

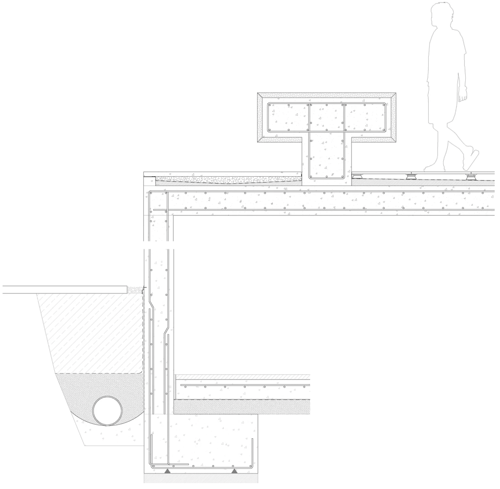
Detalle constructivo del aparcamiento

Detalle constructivo del muro cortina de la biblioteca

Vista exterior
